Er du også interessert i?

Gråvannsrenseanlegg for hytter uten innlagt vann

Odin Maskin

Produktnr.
2101
Lager
Bestillingsvare
Pris
kr 18 385,00

Vann man bærer inn på hytta blir vanligvis sluppet ut igjen uten noen form for rensing.
Men nå krever flere og flere kommuner at også dette vannet skal renses.
Gråvannsrenseanlegg-mini i er den prefekte løsningen for dette formålet.
Gråvannsrenseanlegg-mini kan graves ned, plasseres under hytta eller terrassen.
Anlegget produseres i rotasjonsstøpt polyetylen.
Leveres komplett med filtermasse som er en kombinasjon av Filtra Lite P og vanlige Leca kuler, filterpose for oppsamling av fett og partikler samt spredeplate for jevn fordeling av vannet over filtermassen.
Filtra Lite P har en meget god renseeffekt for fosfor og organisk stoff.
Filteret har en meget lang levetid, det er kun filterposen som skiftes med jevne mellomrom (ca. 1 gang pr. år).
Ferdig renset avløpsvann ledes ut i grunnen i en enkel spredegrøft (lengden vurderes etter jordas dreneringskapasitet).
Varmekabel kan leveres som tilleggsutstyr.

NB! Urin må ikke tilføres anlegget!

Beskrivelse og montering:
Gråvannsrenseanlegg-mini består av en slamfilterdel og en biofilterdel.

Slamfilterdelen:
Slamfilterdelen består av en pose hvor grovrensingen foregår.
Vannet filtreres gjennom en slamfilterpose hvor fett, slam, kaffegrut o.l. blir samlet opp slik at ikke større partikler går videre gjennom biofilteret.

Biofilterdelen:
Biofilterdelen består av en spredeplate som sørger for god spredning av vannet gjennom biofilteret som består av Leca FiltraLite P (knust Leca).
Det rensede vannet ledes via et drensrør i bunnen av anlegget og renner videre med selvfall ut av anlegget.

Montering:
Odin GVR-mini er i utgangspunktet beregnet for nedgraving, men kan også monteres under hytta eller frittstående. Anlegget må i så fall frostsikres. Ved nedgraving må anlegget settes på 10-20 cm. med pukk eller singel - sørg for å avrette og vatre før man setter ned anlegget.
Ved høy grunnvannstand kan det være nødvendig å forankre anlegget for å forhindre oppdrift.

Frostisolering:
Følgende tiltak kan utføres for å frostsikre anlegget: Isolering av lokket, utvendig kan det legges 5 cm. markisolasjon (type Jackon e.l.) samt at man legger isolasjon horisontalt 10 cm under terreng og 50 cm. som en krave rundt hele anlegget før igjenfylling.

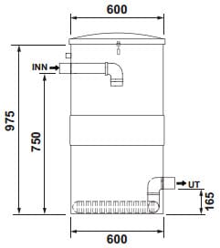
Gråvannsrenseanlegg-mini:
Diameter: 600 mm
Høyde: 975 mm
UK-innløp: 750 mm
UK-utløp:165 mm
Vekt u/filtermasse: 30 kg.
Vekt m/filtermasse: 80 kg.

Funksjonsbeskrivelse:
Det anbefales å installere anlegget et stykke vekk fra hytta ettersom det fettholdige vannet kan avgi noe lukt.
Alternativt kan man anbore en lufteledning på anlegget som føres opp over taket på hytta.
OBS! Vi gjør oppmerksom på at dette filteret kun er beregnet for mindre vannmengder og hvor vannet bæres inn i hytta.
Sjekk med din kommune om regelverket dersom du er usikker på om dette anlegget er egnet for din hytte.
Effekten på anlegget er avhengig av god oppholdstid før vannet renner videre ut.
Da det kun er et begrenset filtervolum som vil bli mettet ved bruk av anlegget, er det viktig at det kun tilføres begrensede vannmengder.
Det totale vannforbruket bør ikke overstige 100 l/døgn.
Dette innebærer at anlegget kun bør benyttes på hytter uten oppvaskmaskin, badekar, vaskemaskin og andre installasjoner med høyt vannforbruk.
Ved tilførsel av vannmengder på under 100 l/døgn kan det forventes renseffekter i størrelsesorden 55-75 % for Tot-P og 30-60 % for KOF.
Ved 40 bruksdøgn/år og et vannforbruk på under 100 l/bruksdøgn vil filteret beholde fosforbindingskapasiteten i minimum 7 år